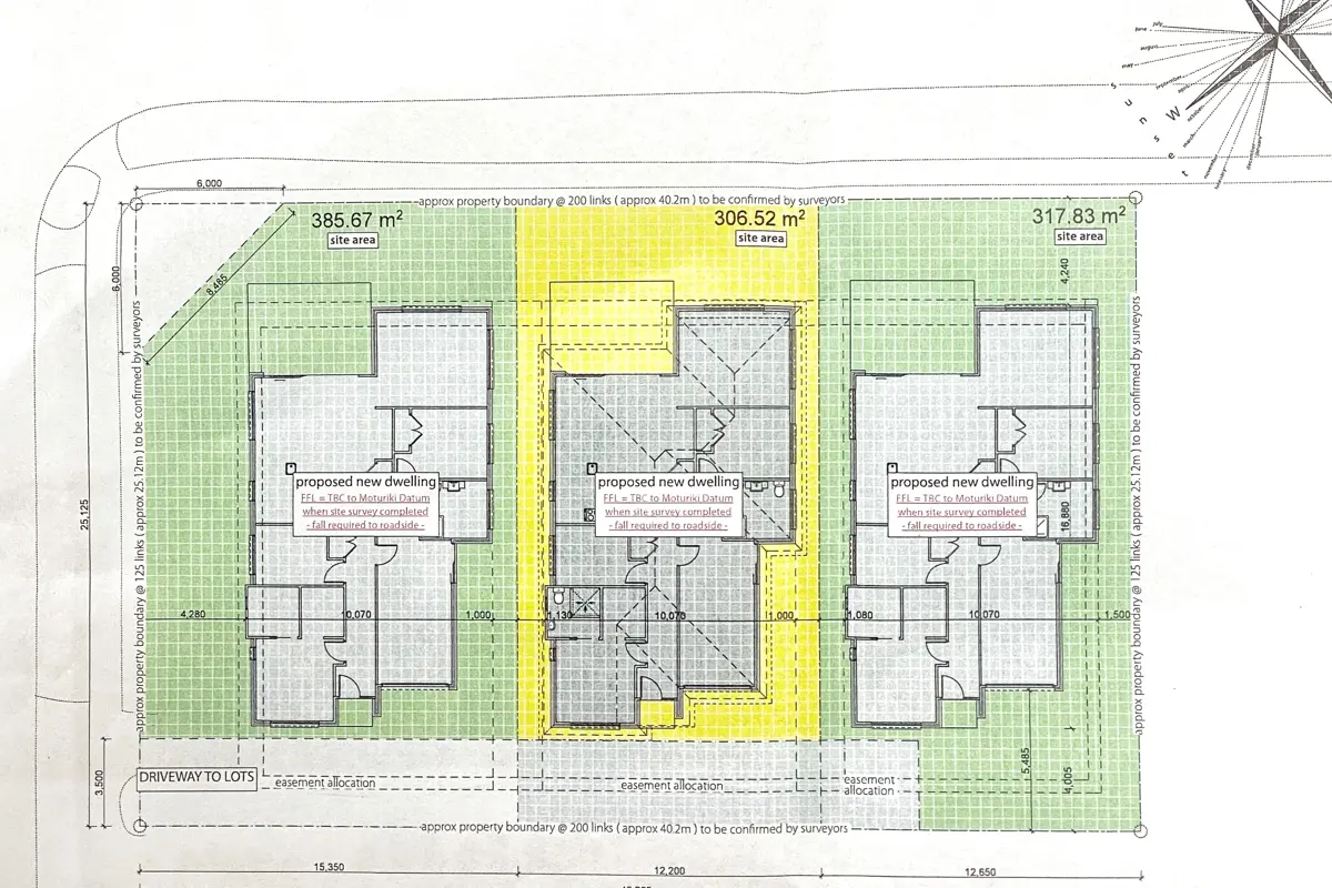
Lot 1, 115 Palmer Street, Te Awamutu, Waipa
price TBC
3

2

1




Perfectly placed on Palmer
An exciting, executive townhouse that combines timeless brick and linea weatherboards for a contrasting and stylish design. Located on a corner site, only a few steps from our CBD, schooling, medical centre, and many more essential services. This is a turnkey finish with a 10 year master builders guarantee. Completion is due February 2021. One has been sold already! Feel relaxed and comfortable, inside and out, a bit like you're on holiday all year round. Creating meals for a family or guest will be a breeze in your sparkling new kitchen complete with breakfast bar and brand new appliances, perfect for busy mornings or simply a place to causally enjoy. Adjacent is a north facing deck to enjoy a BBQ over summer or sit back and relax in the separate lounge. Serviced by a modern central bathroom, complete with free standing bath, shower and vanity. The master will be built with a complementing ensuite and walk in wardrobe. There is time to be organised and watch as your future is built in front of you. At this stage you do have the opportunity to add your own finishing touches and choose your own colour schemes. This location is rare and you'll find it hard to beat it for convenience. Contact Sonia Furniss 027 5400 726 for more information and updates.