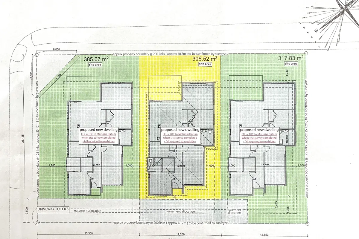
Lot 2, 115 Palmer Street, Te Awamutu, Waipa
price TBC
3

2

1




Central town living
Crafted for convenience of central town living, this property a prime piece of Te Awamutu real estate. An elegant brick and linea home that tastefully contrasts and portrays the quality of the three bedrooms, two bathrooms, including a master bedroom with ensuite and walk in robe. The gallery styled kitchen with a breakfast bar that encourages casual chatter will be equipped with stylish new appliances that will delight any owner. Stretching to the dining area and beyond to the sun capturing deck where more family and friends can gather. Designed with a separate lounge means that there is more flexibility and more cosy comfort. Welcome to your opportunity to own an executive townhouse being constructed on the corner of Vaile and Palmer Street. Only a few steps from our CBD, Schooling, medical centre, and many other essential services. Completion is expected February 2021 and therefore time to be organised and watch as your future is built in front of you. Contact Sonia Furniss 027 5400 726 for further information.