92 Churcher Street, Feilding
price TBC
3
 
        2
 
        2
 
         
            Under construction and designed to impress
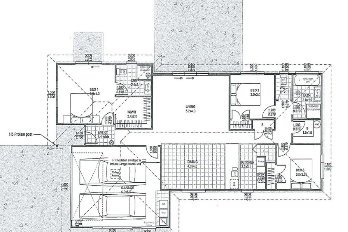
Currently under construction, this thoughtfully designed home offers a modern, open-plan layout perfect for family living. The heart of the home features a spacious living area with seamless flow to a north-facing timber deck ideal for entertaining or relaxing outdoors. The kitchen is a standout, boasting a large island for family gatherings and a generous walk-in pantry. The master suite is a private retreat, opening onto a patio perfect for a hot tub, complete with a fitted walk-in wardrobe and ensuite. Two additional double bedrooms are cleverly separated for privacy, each with fitted wardrobes and abundant storage throughout this home. A double internal access garage completes this exceptional home. Situated just down the street from Feilding High School, with primary and intermediate schools within walking distance, this location offers convenience for the whole family.
92 Churcher Street, Feilding
Web ID
FU209282
Floor area
166m2
Land area
643m2
District rates
$TBApa
Regional rates
$TBApa
LV
$TBA
RV
$TBA
3
 
        2
 
        2
 
        price TBC
View by appointment
Contact
 
     
             
             
             
                 
         
             
             
             
             
             
         
                             
                             Print property flyer
                                Print property flyer
                             
                             
                     
                     
                                     
                                     
                                     
                     
                 
                         
                         
                 
                 
                