14A Arawa Street, Welbourn, New Plymouth

Buyers $749,000+

2

Bedrooms

1

Bathrooms

1

Garages

+10

+9

Chic, central, lock and leave

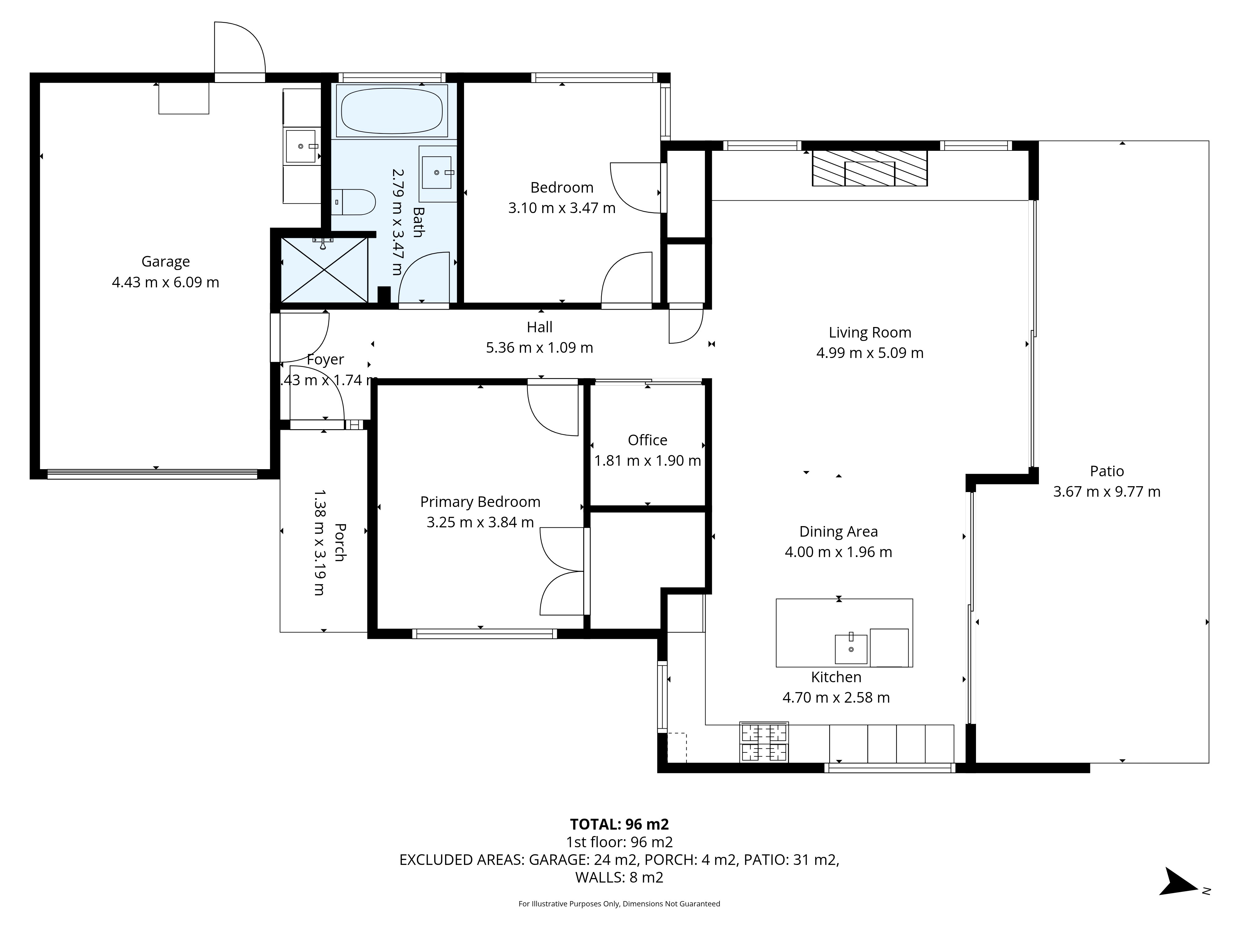
From the moment you arrive, this beautifully designed modern home makes an immediate statement. Stylish, smart, and incredibly well thought out, it offers the perfect balance of contemporary living and everyday practicality, all wrapped up in a low maintenance package. The open plan kitchen, dining, and living area is light filled and welcoming, flowing seamlessly through two large stackable ranch sliders to a private, sunny outdoor space. This is a home made for both relaxing and entertaining. A cleverly positioned study nook with additional storage provides valuable flexibility, ideal for working from home or keeping life organized. Two generous double bedrooms are serviced by a modern bathroom featuring both a bath and shower, while internal access single garaging adds everyday convenience and security. Set on a fully fenced section with a concreted driveway, the home is finished with striking cedar, concrete block, and plywood cladding that delivers both durability and timeless appeal. Located in a highly sought after central position, close to Pukekura Park and the CBD, placing the best of the city right at your doorstep. Stylish, functional, and perfectly located, this is an exceptional opportunity you will not want to miss.

14A Arawa Street, Welbourn, New Plymouth

Web ID

NPU223961

Floor area

144m2

2

Bedrooms

1

Bathrooms

1

Garages
Buyers $749,000+
Upcoming open home(s)
Sun 22 Mar 12:45pm - 01:15pm

Contact


Beau Burmester

Beau Burmester

View phone

View Profile

Property enquiry

Property enquiry for
NPU223961
Grace Barlow

Grace Barlow

View phone

View Profile

About the location


Satellite

You might also like


NPU202607

3

Bedrooms

1

Bathrooms

• Homes constructed on-site at WITTs Bell Street campus by building students, overseen by industry-experienced construction tutors • Three double bedrooms • Open plan living • Bathroom, two toilets & separate laundry (rooms only) • Double glazed aluminium joinery Call for an appointment to view. Purchase price will be + GST (if any).

$160,000 + GST (if any)
NPU222787

2

Bedrooms

1

Bathrooms

1

Garages

This light-filled unit is surprisingly spacious, offering open plan kitchen, dining and lounge living along with two good sized bedrooms. With retrofitted double glazing throughout and two well positioned heat pumps, you'll stay warm in winter and cool in summer. Double doors open out from the lounge to a north facing patio and grassed area. The single internal access garage comes with a bonus - a second garage door opening to the rear of the property, ideal for a trailer, extra vehicle or pop-top caravan. Conveniently located with a nearby bus stop for easy public transport, plus just a few minutes walk to the Coronation Street shops. The property is also zoned for Welbourn School and Highlands Intermediate, adding extra appeal for a range of buyers.

Buyers $569,000+
NPU223961

2

Bedrooms

1

Bathrooms

1

Garages

From the moment you arrive, this beautifully designed modern home makes an immediate statement. Stylish, smart, and incredibly well thought out, it offers the perfect balance of contemporary living and everyday practicality, all wrapped up in a low maintenance package. The open plan kitchen, dining, and living area is light filled and welcoming, flowing seamlessly through two large stackable ranch sliders to a private, sunny outdoor space. This is a home made for both relaxing and entertaining. A cleverly positioned study nook with additional storage provides valuable flexibility, ideal for working from home or keeping life organized. Two generous double bedrooms are serviced by a modern bathroom featuring both a bath and shower, while internal access single garaging adds everyday convenience and security. Set on a fully fenced section with a concreted driveway, the home is finished with striking cedar, concrete block, and plywood cladding that delivers both durability and timeless appeal. Located in a highly sought after central position, close to Pukekura Park and the CBD, placing the best of the city right at your doorstep. Stylish, functional, and perfectly located, this is an exceptional opportunity you will not want to miss.

Buyers $749,000+

Request for information files


Terms of Supply

By accepting the information contained in the Property Brokers Information Files, I acknowledge I have read, understood and accepted the terms on which the information is made available:

  • It is acknowledged that any LIM report/builders reports/title search information or other property information documents that have been supplied by Property Brokers have been provided to interested potential buyers for general information purposes only, and may not have been sourced directly from providers by Property Brokers.
  • Neither Property Brokers nor their client (vendor) warrant the accuracy, completeness or currency of this documentation and nor do they accept liability for any errors or omissions in these documents.
  • All interested potential purchases should conduct their own due diligence, and obtain and rely on their own documents and legal/specialist advice as required from a person/company of their choosing.
  • Any purchase decisions are made entirely on reference of potential purchasers own judgement and they have satisfied themselves on all aspects of the property independently. Such decisions have not been made upon reference of the documents received in the Information Files supplied by Property Brokers.
  • By requesting the Information Files, you give consent for the real estate agent to communicate with you.