35A Victoria Avenue, Whakatane
price TBC



Flat blank canvas for building new!
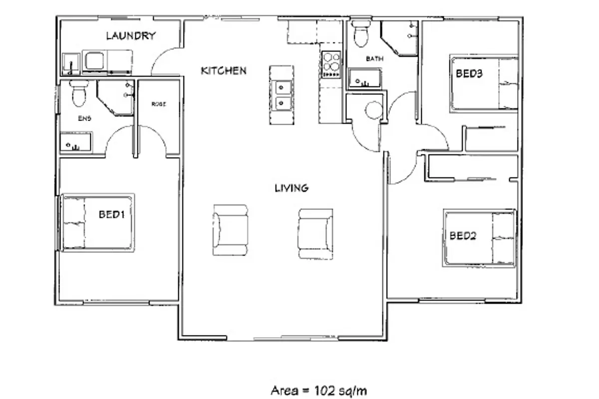
Here is your opportunity to secure a section in popular Victoria Avenue. The section offers a flat and easy build site: • Concrete driveway, fully fenced section • Full services to the boundary • The best part - there are no covenants • Title to be issued • Build or re-locate an existing home; or • Landbank and build in the future • Concept plan provided by Jennian Homes - a clever design of bedrooms, 2 bathrooms (Master bedroom includes an ensuite and walk in wardrobe), a separate laundry and an open plan kitchen and living area which really maximises the space. A blank canvas in such a great location and within walking distance to shopping and schools makes for a very attractive investment for anyone looking to build. Contact us for more information. Concept and floor plans provided by Jennian Homes. For more information: https://propertyfiles.co.nz/property/WTU114264
35A Victoria Avenue, Whakatane
Web ID
WTU114264
Land area
412m2
LV
$500,000
RV
$630,000
price TBC
View by appointment
Contact

