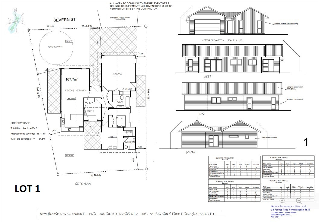
Lot 1, 49 Severn Street, Rongotea, Manawatu

Buyers $715,000+

3

Bedrooms

2

Bathrooms

2

Garages

+1

Brand new, easy living, coming soon

Here's your chance to secure a brand new home off the plans in the heart of Rongotea. Lot 1 sits on a 486m2 (more or less) section and offers a well-designed three-bedroom layout, ideal for buyers looking for low-maintenance, modern living in a peaceful village setting. The floor plan includes open plan kitchen, dining, and living, a walk-in pantry, three generous bedrooms, and a master with ensuite and walk-in wardrobe. Both bathrooms will feature tiled flooring and clean, neutral finishes. Internal access garaging and a separate laundry complete the package. Buyers who commit early will have the opportunity to select from a range of colour options, while the rest will be finished to a high, consistent specification. Whether you're stepping into your first home, downsizing, or investing, this is a smart way to secure your spot in a growing community.

Chattels

Auto Garage Door Opener x1 and Remote x2, Bath, Clothesline, Dishwasher, Hob/cooktop - Electric, Wall Oven - Electric, Extractor Fan x2, Fixed Floor Coverings, Heated Towel Rail x2, Heat Pump and Remote, Letterbox, Light Fittings, Mirrors x2, Range Hood, Security Lighting, Security System (Unmonitored), Smoke Detectors, Super Tub
Lot 1, 49 Severn Street, Rongotea, Manawatu

Web ID

BU180195

Floor area

157m2

Land area

485m2

3

Bedrooms

2

Bathrooms

2

Garages
Buyers $715,000+
View by appointment

Contact


Blair Alabaster

Blair Alabaster

View phone

View Profile

Property enquiry

Property enquiry for
BU180195

About the location


Satellite

You might also like


BU210788

3

Bedrooms

2

Bathrooms

6

Garages

Featuring a striking monochrome palette and large windows that frame the rural views like living artwork, this thoughtfully designed 196m2 (more or less) home offers seamless open-plan living, kitchen, and dining spaces, complemented by three generous bedrooms, including a master with ensuite. Built specifically for easy living, lower power bills, and reduced energy consumption, the home includes a mechanically ventilated SmartVent system, a hot water heat pump, thermally broken aluminium joinery with Low-E Max glazing, and Intello airtight cavity construction. With R9.6 ceiling insulation, R5.5 wall insulation, and insulated internal walls for both thermal and acoustic comfort, plus a MAXSlab 300 fully insulated concrete floor and a fully insulated garage with attic trusses and a pull-down ladder to a 2m x 2m storage loft, this property is well above standard building requirements. In fact, the current owners can count on one hand how many times they've used their electric heater, which is an impressive testament to the home's efficiency. Outside, a covered rear deck sits under the home's extended roofline, offering sheltered entertaining year-round, while the 1.2ha (more or less) fully fenced section includes a 109m2 (more or less) pole shed with two open bays and two secure bays on a split-level slab designed to keep contents dry, small stock yards ideal for sheep or small cattle, and a spa pool for ultimate relaxation. Zoned for Feilding High School, this property represents a rare blend of smart design, rural functionality, and future-focused living. This truly is a special opportunity to secure your slice of paradise. Don't delay your viewing, call today!

Buyers $999,999+
BU210369

Build the lifestyle you’ve always dreamed of. Positioned just on the outskirts of Rongotea and only a short drive to both Feilding and Palmerston North, this beautiful 2-acre (more or less) section offers the perfect canvas to create your forever home. With the title already issued and power to the gate, all that’s left to do is engage the builder and the architect. Fully fenced and featuring stunning views from every direction, the section provides outstanding potential for designing a modern, spacious home with room for sheds, gardens, a pool and even a few farm animals – whatever suits your vision for a country lifestyle. Enjoy the best of both worlds, peaceful rural living with all the benefits of urban convenience. With breathtaking rural views and a genuine sense of space, this is the perfect opportunity for those looking to escape the hustle without sacrificing connectivity. This is the prime opportunity to begin your lifestyle dream. Get in touch today to arrange a site viewing or for more information.

By Negotiation
BU215957

3

Bedrooms

2

Bathrooms

2

Garages

Lot 2 is a thoughtfully designed three-bedroom home available to purchase off the plans, set on a 485m2 (more or less) section in a friendly and fast-growing village community. This new build will include open plan living and dining, a well-appointed kitchen with walk-in pantry, and three double bedrooms. The master bedroom offers both an ensuite and walk-in wardrobe, while the main bathroom will be tiled and finished in a neutral, modern style. A separate laundry and internal access garage add everyday practicality. Purchasers who secure early will have the chance to choose from a range of colour selections, allowing you to personalise your new home without taking on a full custom build. Designed and to be built by Award Builders, this home will offer easy, modern living with peace of mind in a quality setting.

Buyers $715,000+

Request for information files


Terms of Supply

By accepting the information contained in the Property Brokers Information Files, I acknowledge I have read, understood and accepted the terms on which the information is made available:

  • It is acknowledged that any LIM report/builders reports/title search information or other property information documents that have been supplied by Property Brokers have been provided to interested potential buyers for general information purposes only, and may not have been sourced directly from providers by Property Brokers.
  • Neither Property Brokers nor their client (vendor) warrant the accuracy, completeness or currency of this documentation and nor do they accept liability for any errors or omissions in these documents.
  • All interested potential purchases should conduct their own due diligence, and obtain and rely on their own documents and legal/specialist advice as required from a person/company of their choosing.
  • Any purchase decisions are made entirely on reference of potential purchasers own judgement and they have satisfied themselves on all aspects of the property independently. Such decisions have not been made upon reference of the documents received in the Information Files supplied by Property Brokers.
  • By requesting the Information Files, you give consent for the real estate agent to communicate with you.