Lot 1, 1 37 Taupo View Road, Taupo

Auction 12 February 2026
5
Bedrooms
2
Bathrooms
1
Garages

+23

+22

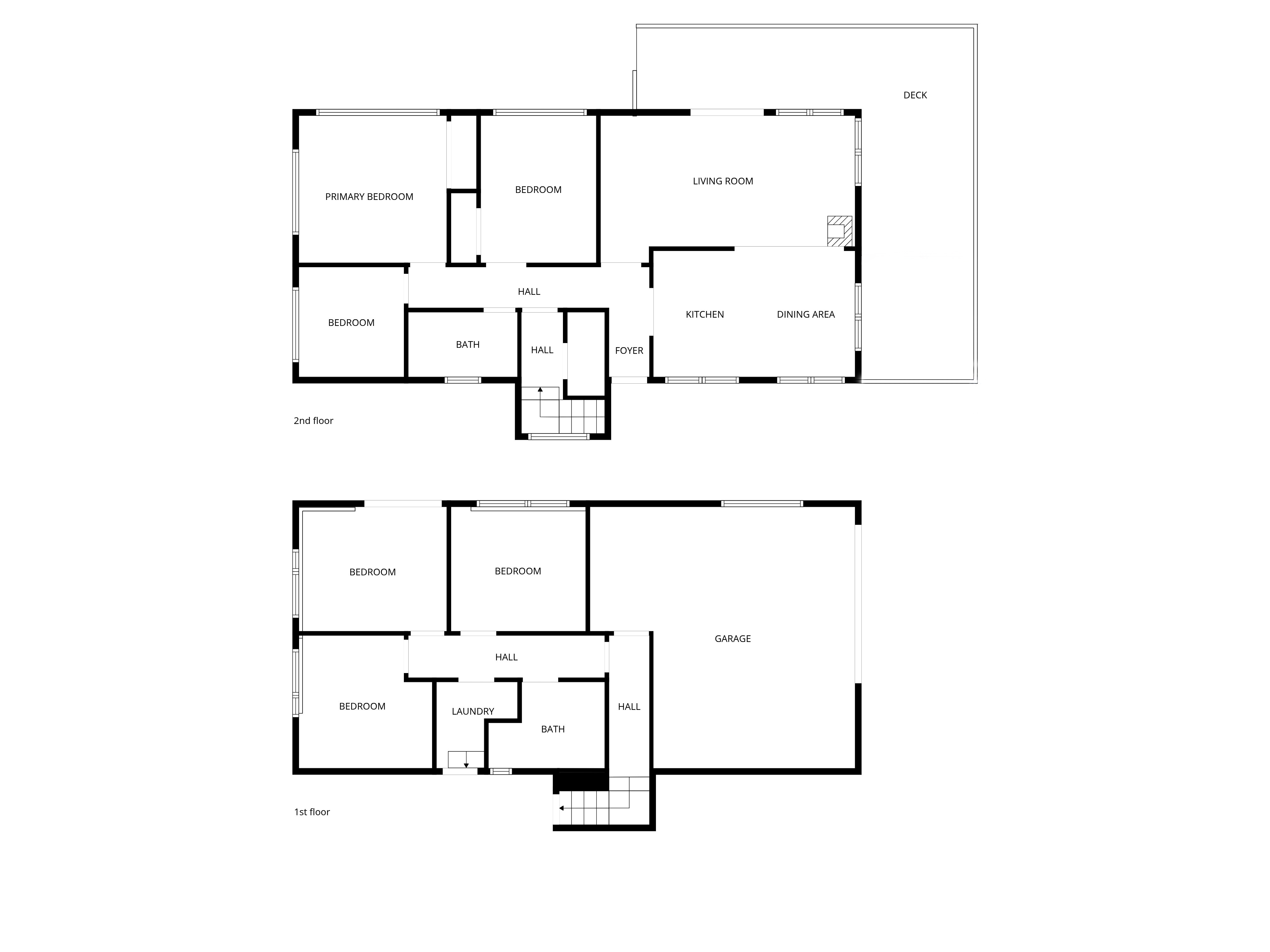
Family living and future potential

Step through the ranch sliders into the sunlit lounge and instantly take in the warmth, natural light and stunning Mount Tauhara views. This is more than just a home, this is a lifestyle upgrade. Welcome to a sun-soaked, five-bedroom family haven, perfectly positioned in central Taupō. Upstairs, the heart of the home opens wide with three generous bedrooms, a family bathroom and open-plan living that flows seamlessly onto a wraparound deck. Here, mornings begin with coffee and mountain views, afternoons are made for BBQs and soaking up the sun, and when the heat turns up, there’s always a shaded corner to retreat to. This is outdoor living done right. Downstairs is where flexibility meets opportunity. Two bedrooms, a bathroom and a second lounge open directly to the private backyard, creating the ultimate retreat for teenagers, extended family or guests. The laundry has previously been converted into a kitchenette, showcasing the potential for dual living, multigenerational harmony or the highly sought-after home-and-income setup. This is a home that has evolved beautifully with its owners for over 20 years, thoughtfully adapted to support easy, modern family living. Warm winters, cool summers and effortless comfort are covered year-round with a cosy woodfire upstairs, heat pumps on both levels and insulation downstairs. Outside, the fully fenced backyard is your own private oasis. Lush, green and framed by established hedges and fruitful grapevines. There’s plenty of space for kids and pets to play freely with complete peace of mind. And the cherry on top? A cleverly engineered double side gate opens wide enough to securely store a boat or camper, or bring in a trailer of firewood, ready for those cosy winter nights. And the opportunity doesn’t stop here. With a rare, build-ready section also available, the future growth potential is abundant. This isn’t just a place to live, it’s a place to grow, adapt and elevate. This is a home you truly need to experience in person. And if you’re thinking bigger, be sure to view Lot 2, 37 Taupo View Road and explore the additional section opportunity. Your next level starts here. (Note: Lot 1 & 2 being a proposed subdivision of Lot 44 DP 22989) To be sold by Auction, Thursday 12th February 2026, 11am at The Terraces Room at The Hilton Taupo,80-100 Napier Road, Taupo (if not sold prior).

Chattels

Fixed floor coverings, Light fittings, Blinds, Drapes, Dishwasher, Heated towel rail(s), Auto Garage Door Opener and Remote x2, Clothesline, Electric Stove, Extractor Fan, Letterbox, Mirrors, Net Curtains, TV Aerial, Bath
bid-day-out-logo
Lot 1, 1 37 Taupo View Road, Taupo

Web ID

TPU213104

Floor area

202m2

Land area

437m2

5
Bedrooms
2
Bathrooms
1
Garages
Auction (unless sold prior)

Thursday, 12 February 2026, 11.00am

Upcoming open home(s)
Sun 18 Jan 12:15pm - 12:45pm
Sun 25 Jan 12:15pm - 12:45pm
Sun 01 Feb 12:15pm - 12:45pm
Sun 08 Feb 12:15pm - 12:45pm

Contact


Sabrina Waayer

Sabrina Waayer

View phone

View Profile

Property enquiry

Property enquiry for
TPU213104

About the location


Satellite

You might also like


TPU149256
3
Bedrooms
1
Bathrooms
1
Garages

Enjoyed and well maintained by these owners for 28 years, they are ready to pass their home on to its next owners. Proudly positioned to look over the 1012sqm section with mature trees and flat lawns, is this 130sqm three bedroom family home. The roomy entrance way invites you in and sends you in three directions. To the right, is the roomy lounge, the French doors open out to the front deck and let in the stunning morning sun. This room can be closed off from the rest of the house. Through the doorway at the end, the dining room welcomes you to a sunny afternoon spot and round to the family kitchen, both overlooking the very private back garden. Down the hallway is the spacious master bedroom, with a twin guest bedroom and the 3rd bedroom, currently utilised as a hobby room. The family bathroom has a large vanity and shower, with a separate toilet with access into the large laundry. Light and bright interior is inviting and homely. The single basement garage and storage space complete this fantastic home. Ample off-street parking and space for the family to enjoy. With its great location and friendly neighbourhood, this property is one to visit. To be sold by Tender, closing at 2pm Wednesday 29th November 2023.

Tender
TPU192869
5
Bedrooms
2
Bathrooms

Are you looking for a family retreat nestled in the heart of Taupo with an impressive array of features? This splendid property offers an exceptional living experience that combines modern convenience with a warm, inviting atmosphere. It may just be your perfect home. The stunning new kitchen stands as the heart of the home, includes state-of-the-art appliances, generous storage solutions, and an abundance of counter space, making it a culinary haven. The open-plan layout seamlessly flows into the dining and living areas, creating an inviting space for family gatherings and social events. With five well-proportioned bedrooms, and a 6th if you include the converted internal access garage, there is ample room for everyone to enjoy their own private sanctuary. The property features two modern bathrooms, thoughtfully designed for both functionality and style. These spaces offer contemporary fixtures and fittings, ensuring comfort for all family members and guests. Step outside to discover the expansive deck that accentuates outdoor living at its finest. This versatile space is ideal for alfresco dining, weekend barbecues, or simply soaking up the sun with a good book in hand. The deck is complemented by an established, fully fenced garden. Location is key, and 2/86 Hinemoa Avenue does not disappoint. Situated within close proximity to a variety of schools, this home is perfect for families looking for convenience. Parents will appreciate the ease of drop-offs and pick-ups, while children can enjoy the short commute to school. This neighbourhood is not only family-friendly but also offers easy access to local parks, shops, and an array of recreational facilities. In summary, 2/86 Hinemoa Avenue is more than just a house - it is a home that caters to the needs of modern family living. With its spacious interior, contemporary features, expansive outdoor entertaining area, and a superb location close to schools, this property is an excellent find in today's market. Don't miss out on the opportunity to make this remarkable residence your own. Contact me to arrange a viewing and start your journey towards securing this splendid home. Please note: The internal access single garage has been converted into a sixth bedroom.

$795,000
TPU210212
2
Bedrooms
1
Bathrooms

No open homes this weekend - Viewings by appointment can be arranged. Positioned perfectly at Main Beach, this well-presented unit offers an exceptional opportunity to secure a low-maintenance home or investment in one of the region’s most sought-after locations. Set just steps from the lake’s edge, with cafes, shops, and Taupo's town centre all within easy walking distance. An open plan light filled living and dining area flows into a functional kitchen, all designed with simplicity and comfort in mind with two double bedrooms and a combined bathroom/laundry. Upstairs, a generous loft-style third bedroom adds flexibility, ideal as a guest room, teenager's retreat, or even a quiet home office. Set within a quiet, and well-maintained complex, the property enjoys the peace of mind of shared care without the hassle of heavy maintenance. You will also enjoy the convenience of two off-street carparks and an additional storage shed. With potential to update or modernise over time, this unit offers an excellent canvas for buyers looking to personalise or add value. Opportunities like this are tightly held and rarely come to market. Don't miss your chance to own a piece of Lake Terrace - contact us today for further details or to arrange a private viewing.

By Negotiation

Request for information files


Terms of Supply

By accepting the information contained in the Property Brokers Information Files, I acknowledge I have read, understood and accepted the terms on which the information is made available:

  • It is acknowledged that any LIM report/builders reports/title search information or other property information documents that have been supplied by Property Brokers have been provided to interested potential buyers for general information purposes only, and may not have been sourced directly from providers by Property Brokers.
  • Neither Property Brokers nor their client (vendor) warrant the accuracy, completeness or currency of this documentation and nor do they accept liability for any errors or omissions in these documents.
  • All interested potential purchases should conduct their own due diligence, and obtain and rely on their own documents and legal/specialist advice as required from a person/company of their choosing.
  • Any purchase decisions are made entirely on reference of potential purchasers own judgement and they have satisfied themselves on all aspects of the property independently. Such decisions have not been made upon reference of the documents received in the Information Files supplied by Property Brokers.
  • By requesting the Information Files, you give consent for the real estate agent to communicate with you.