33B Isobel Hodgson Drive, Cambridge, Waipa
$1,179,000
4

3

2







+3
Be in your new home for Christmas
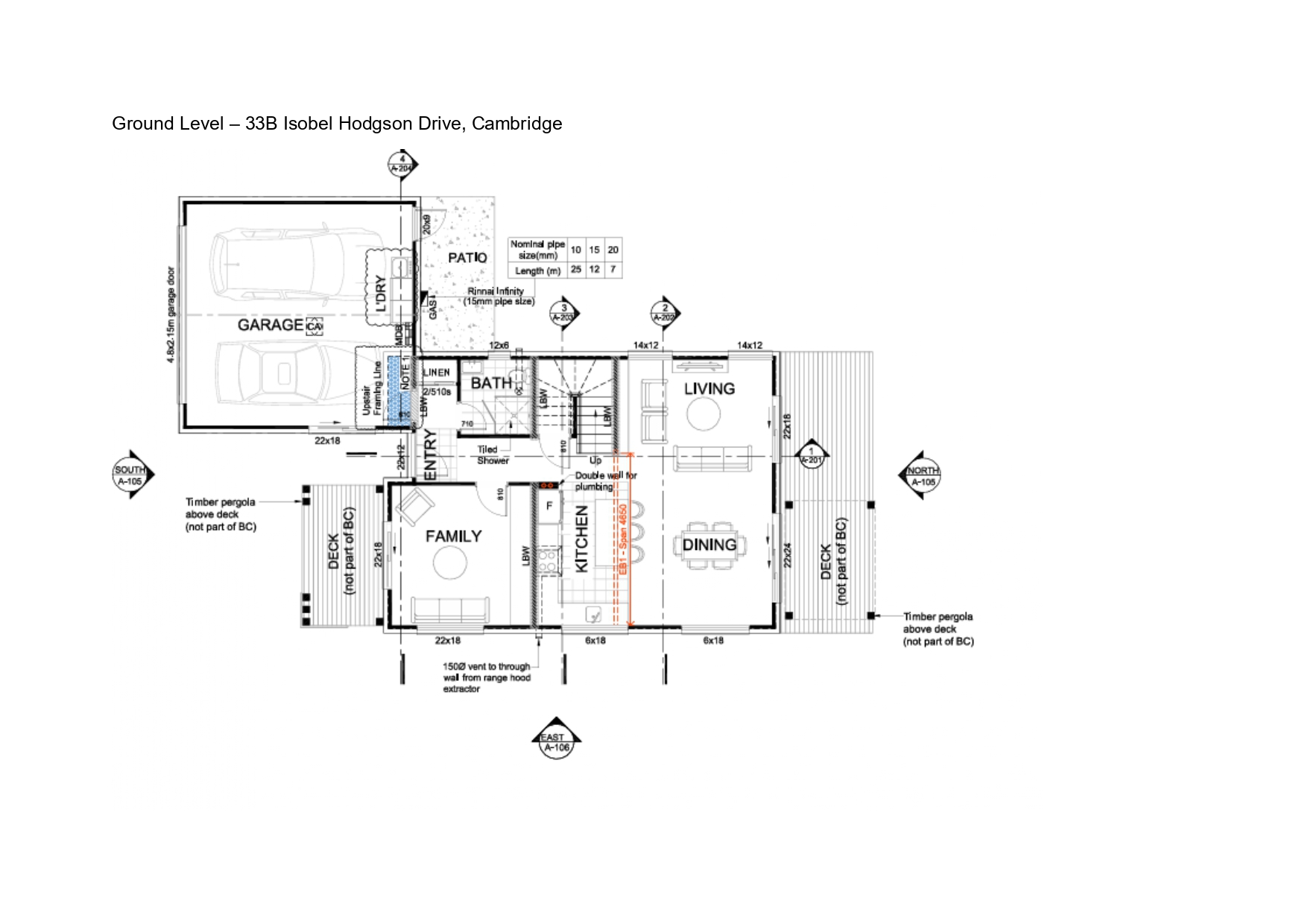
This stunning, newly built (Will be completed by end of October) 4-bedroom, 3-bathroom executive residence delivers modern design, energy efficiency, and exceptional functionality – perfect for professionals and families seeking quality and convenience. Step inside to discover a thoughtfully designed layout with premium finishes throughout. The heart of the home is a spacious open-plan entertainer’s kitchen with Bosch appliances, gas hob, and gas infinity hot water. The adjoining dining area flows effortlessly onto a sun-drenched deck – ideal for summer BBQs and outdoor entertaining. Downstairs also features a generous family room and a guest powder room (with shower), while a second lounge offers additional living flexibility. All four bedrooms are generously sized, including a master suite complete with a luxurious en-suite and double robe. The remaining three bedrooms share a stylish, well-appointed family bathroom – all with the same high-quality finishings. Comfort is assured year-round with multiple heat pumps throughout the home. The double internal-access garage includes an electric vehicle charging station, and the home is equipped with 14 solar panels on the roof for added energy efficiency. Set on easy-care, low-maintenance grounds, this home is the perfect blend of style, comfort, and sustainability – and with a playground right off your backyard, the kids will love it too.
33B Isobel Hodgson Drive, Cambridge, Waipa
Web ID
CBU212562
Floor area
201m2
Land area
395m2
District rates
$4,414.96pa
Regional rates
$588.67pa
LV
$590,000
RV
$1,170,000
4

3

2

$1,179,000
View by appointment
Contact

