Paraparaumu Beach, Kapiti Coast

Buyers $240,000+
2
Bedrooms
2
Bathrooms

+12

+11

Coastal just became affordable!

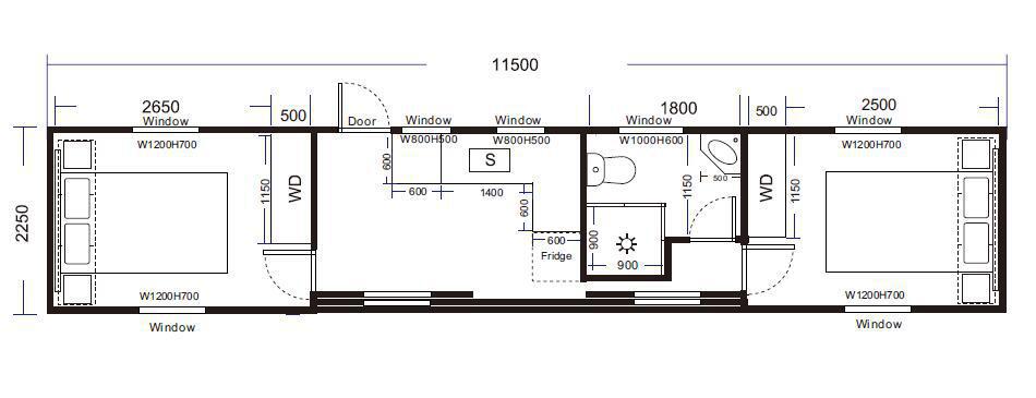
Coastal meets affordable - just a few short steps from the beach in these innovative and versatile "Expandavans" with a ten year licence to occupy at the Beach Holiday Park. Combining the portability of a caravan with the dimensions of a cabin spanning 36sqm featuring a quality granite kitchen, two bathrooms - one outside for washing off the sand and two bedrooms with in-built closets. Designed to maximise space without feeling cramped with intelligent connectivity between service, social zones and bedrooms with modern material construction ensuring ease of upkeep. Ideal as a cost-effective, ready-made holiday home or perfect as a self-contained minor dwelling An innovative alternative in semi-permanent accommodation all set up for you at the beach. Price is Buyer Enquiry between $240,000 and $260,000 depending on lot and Expandavan size - call Rachael for details.

Chattels

Blinds, Electric Stove, Garden Shed, Range Hood, Smoke Detectors, Gas Hot WaterBbottles
Paraparaumu Beach, Kapiti Coast

Web ID

KPU112608

Floor area

36m2

2
Bedrooms
2
Bathrooms
Buyers $240,000+
View by appointment

Contact


Rachael Steinmetz

Rachael Steinmetz

View phone

View Profile

Property enquiry

Property enquiry for
KPU112608

You might also like


KPU200692
2
Bedrooms
2
Bathrooms
1
Garages

Welcome to Moana Views - Experience coastal living at its finest with six brand-new two-bedroom townhouses on Ocean Road, Paraparaumu Beach. Just 200 metres from the shoreline, these architecturally designed homes blend contemporary style with relaxed seaside charm. Each townhouse features a well-appointed kitchen with quality appliances, flowing into spacious open-plan living areas that connect seamlessly to private outdoor spaces—ideal for entertaining or unwinding. The master bedroom boasts a sleek en-suite, while the second bedroom is perfect for guests, family, or a home office. Thoughtfully designed for comfort and easy living, these homes cater to a range of lifestyles. A freehold title means no body corporate fees, ensuring greater ownership freedom. Plus, with quality landscaping by Coastal Projects, these townhouses offer both style and functionality. Convenience is at your doorstep, with Paraparaumu Beach village just a short walk away. Enjoy local cafes, shops, and amenities, while MacLean Park and Paraparaumu Beach Golf Club provide plenty of recreation options. The nearby expressway also makes for an easy drive to Wellington. Whether you're looking to downsize, invest, or embrace a laid-back beachside lifestyle, this is an opportunity not to be missed. With two already sold, only four remain. Secure yours today!

Buyers $849,000+
KPU201211
3
Bedrooms
3
Bathrooms
1
Garages

Welcome to Moana Views Experience the best of coastal living with six architecturally designed three-bedroom townhouses on Ocean Road, Paraparaumu Beach. Just 200 metres from the shoreline, these homes by Voxell blend contemporary elegance with the relaxed charm of seaside living. Each townhouse comes with a freehold title, meaning no body corporate fees. Thoughtfully designed across multiple levels, these residences feature three bathrooms, open-plan living, and a designer kitchen. Select homes offer breathtaking sea and Kapiti Island views. A private elevator/lift can be included in Lots 9, 10, 11 or 12 for an additional cost. A unique Home + Income opportunity awaits - on the ground level, a secluded bedroom with its own bathroom and kitchenette provides options for an Airbnb rental, guest accommodation, or a work-from-home space. This flexible layout enhances the value of your investment while allowing you to make the most of beachside living. Located just a short stroll from Paraparaumu Beach village, you'll have boutique shopping, vibrant cafes, and essential amenities at your doorstep. MacLean Park is nearby for outdoor recreation, while the Paraparaumu Beach Golf Club is moments away for a convenient tee-off. The expressway ensures easy access to Wellington and beyond. Built by Coastal Projects, these homes feature high-quality landscaping, ensuring beauty inside and out. With construction on Moana Views beginning soon and two homes already sold, this is your chance to secure a stunning coastal retreat.

Buyers $1,049,000+
KPU209481
3
Bedrooms
2
Bathrooms
2
Garages

Nestled amidst established gardens, this appealing home offers the perfect blend of comfort, convenience, and coastal charm. Featuring three spacious bedrooms, including a main suite with a walk-in wardrobe and an ensuite, the home’s thoughtful layout provides seamless flow to the central patio, ideal for relaxing or entertaining after a day at the beach. The generous open-plan living area can be enjoyed as one space or divided into two separate zones, offering flexibility for your lifestyle. A private rear courtyard provides the perfect setting for gatherings or quiet evenings outdoors. With scope to add your own flair through updates, this well-maintained property is ready for you to make it your own. Conveniently located and just a short walk to Paraparaumu Beach, Kena Kena shops, schools, and sports amenities, daily errands and activities are effortless. Positioned towards the end of a quiet cul-de-sac in a very sought-after neighbourhood, this home offers privacy and a true sense of community. Completing the picture is an internal double garage, a fully fenced 560m² section, and a spacious 180m² home, an inviting combination of space, comfort. Enjoy the ease of coastal living and secure this fantastic home today!

Buyers $880,000+

Request for information files


Terms of Supply

By accepting the information contained in the Property Brokers Information Files, I acknowledge I have read, understood and accepted the terms on which the information is made available:

  • It is acknowledged that any LIM report/builders reports/title search information or other property information documents that have been supplied by Property Brokers have been provided to interested potential buyers for general information purposes only, and may not have been sourced directly from providers by Property Brokers.
  • Neither Property Brokers nor their client (vendor) warrant the accuracy, completeness or currency of this documentation and nor do they accept liability for any errors or omissions in these documents.
  • All interested potential purchases should conduct their own due diligence, and obtain and rely on their own documents and legal/specialist advice as required from a person/company of their choosing.
  • Any purchase decisions are made entirely on reference of potential purchasers own judgement and they have satisfied themselves on all aspects of the property independently. Such decisions have not been made upon reference of the documents received in the Information Files supplied by Property Brokers.
  • By requesting the Information Files, you give consent for the real estate agent to communicate with you.