1 Ngaio Place, Nukuhau, Taupo

Deadline Sale
3
Bedrooms
1
Bathrooms
2
Garages

+20

+19

Garaging galore plus family home

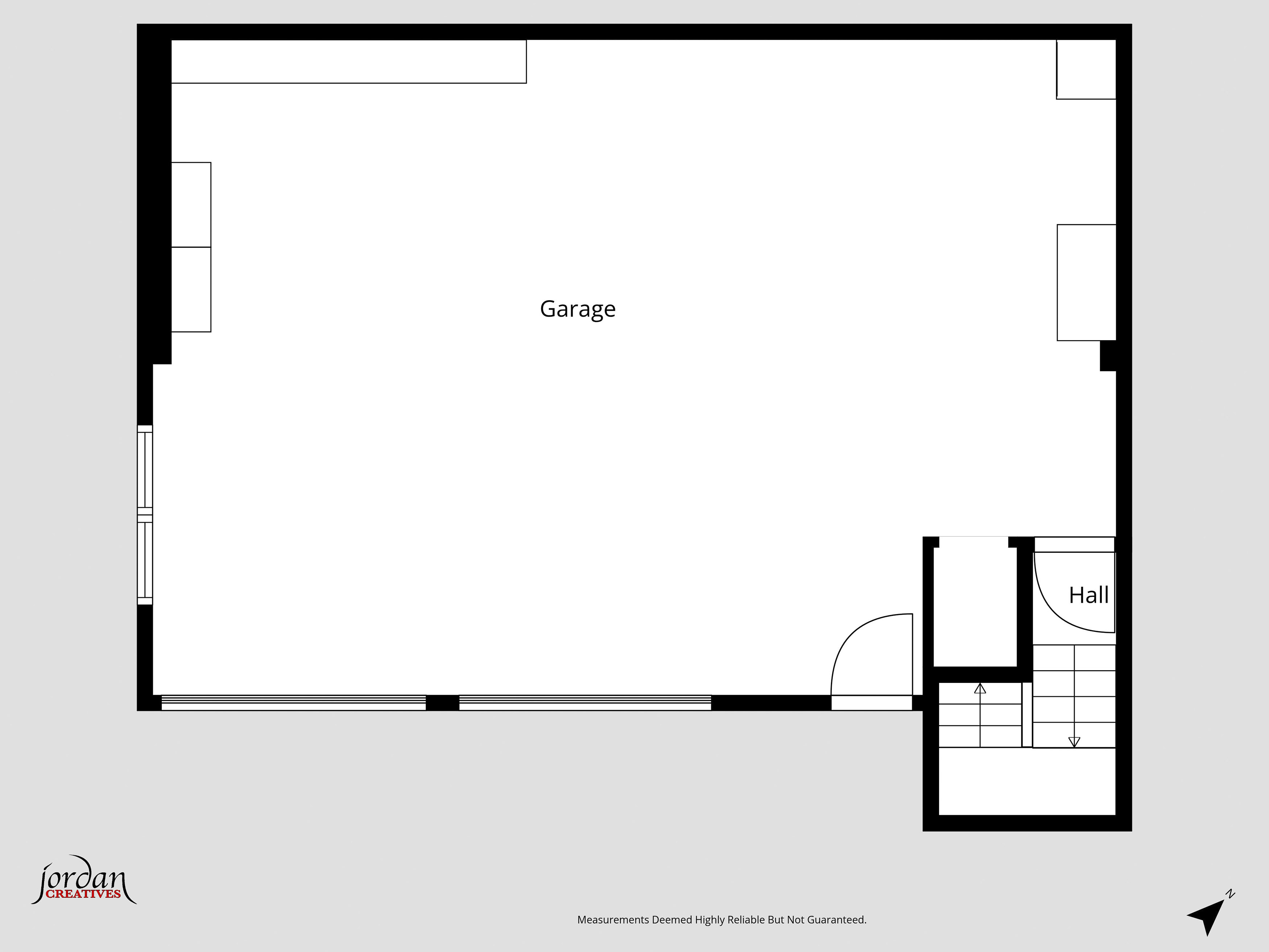
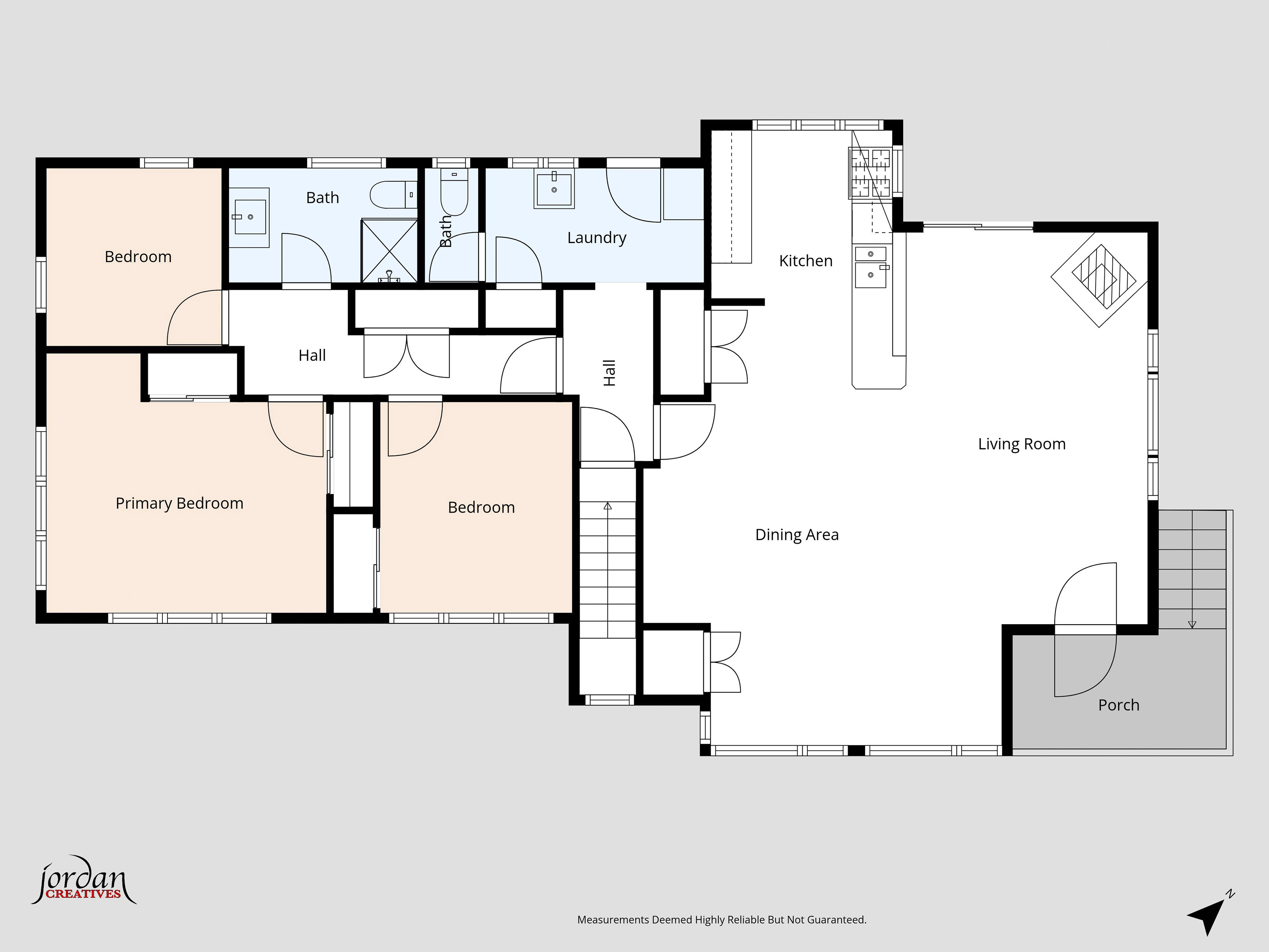
Elevated to capture lake views and all-day sun, this spacious family home offers comfort and practicality in the sought-after Nukuhau location. A massive bonus is the 9 x 7 (more or less) internal access garage and workshop, providing secure parking along with exceptional space for tools, bikes, or recreational equipment. Set on a generous 779m² established section, the property features mature plantings and plenty of room for children and pets to enjoy. Large windows fill the home with natural light, enhancing the sense of space while framing glimpses of the lake. The open plan living area is a standout, with a raked ceiling and exposed beams adding character and interest. This light-filled space feels warm and welcoming, while the wood burner creates a cosy focal point for the cooler months. The kitchen, dining, and living areas flow seamlessly, forming a practical central hub for everyday family living and entertaining. Three well-proportioned bedrooms are serviced by a family bathroom. A large separate laundry is complemented by a separate WC for added convenience, providing excellent functionality and additional storage. Light-filled, elevated, and thoughtfully designed, this property presents an ideal opportunity as a family home or holiday retreat. Contact me today for more information, to arrange a private viewing, or visit one of my upcoming open homes.

Chattels

Fixed floor coverings, Light fittings, Dishwasher, Smoke detector(s), Heated towel rail(s) x 1, Auto Garage Door Opener and Remote, Bath, Clothesline, Hob/cooktop - Gas, Under Bench Oven - Electric, Letterbox, Mirrors, Security Lighting
1 Ngaio Place, Nukuhau, Taupo

Web ID

TPU164607

Floor area

170m2

Land area

779m2

District rates

$4,329.91 pa

Regional rates

$433.17 pa

LV

$450,000

RV

$840,000

3
Bedrooms
1
Bathrooms
2
Garages
Deadline Sale (unless sold prior)
View by appointment

Contact


Stacey Zuccati

Stacey Zuccati

View phone

View Profile

Property enquiry

Property enquiry for
TPU164607

About the location


Satellite

You might also like


TPU164607
3
Bedrooms
1
Bathrooms
2
Garages

Elevated to capture lake views and all-day sun, this spacious family home offers comfort and practicality in the sought-after Nukuhau location. A massive bonus is the 9 x 7 (more or less) internal access garage and workshop, providing secure parking along with exceptional space for tools, bikes, or recreational equipment. Set on a generous 779m² established section, the property features mature plantings and plenty of room for children and pets to enjoy. Large windows fill the home with natural light, enhancing the sense of space while framing glimpses of the lake. The open plan living area is a standout, with a raked ceiling and exposed beams adding character and interest. This light-filled space feels warm and welcoming, while the wood burner creates a cosy focal point for the cooler months. The kitchen, dining, and living areas flow seamlessly, forming a practical central hub for everyday family living and entertaining. Three well-proportioned bedrooms are serviced by a family bathroom. A large separate laundry is complemented by a separate WC for added convenience, providing excellent functionality and additional storage. Light-filled, elevated, and thoughtfully designed, this property presents an ideal opportunity as a family home or holiday retreat. Contact me today for more information, to arrange a private viewing, or visit one of my upcoming open homes.

Deadline Sale
TPU223907
3
Bedrooms
2
Bathrooms
2
Garages

Designed with families in mind, this impressive family home offers multiple living zones, including a separate lounge, a dedicated dining area, and an additional living space — providing flexibility for entertaining, relaxing, or giving everyone their own space to unwind. With 218sqm of thoughtfully designed living set across a 665 sqm section, this property offers the ideal balance of space, comfort, and practicality for modern family life. Inside, you’ll find three well-proportioned bedrooms, including a master retreat complete with its own ensuite, plus a spacious main bathroom servicing the rest of the home. The heart of the home is warm and inviting, featuring a fireplace with wetback for energy efficiency, complemented by a heat transfer system to ensure comfort throughout the cooler months. Storage is a real bonus here, with convenient attic storage, while the double internal-access garage provides secure parking and room for tools or hobbies. There is also ample off-street parking for guests, a boat, or a trailer. The fully fenced section is perfect for children and pets, the grounds looking their best year-round with a large variety of established plantings and fruit trees.

Deadline Sale 26 March 2026
TPU190899
4
Bedrooms
3
Bathrooms
2
Garages

The larger unit of the two units has a price indication of $559k with an RV of $580k. This unit features a large internal access double garage, with an additional room, a downstairs laundry, and the entire upstairs area, offering outstanding views of the marina and lake. The smaller downstairs unit has a price indication of $459k with an RV of $510k. This unit has been renovated and is single level with a nice private back yard area. With easy access to our vibrant town centre, if you were to purchase as one, this property is ideal for families, investors, or those seeking the comfort of dual living arrangements. With so much to offer, it seamlessly combines modern living with functional space, ensuring a delightful home for all. The upper unit boasts breathtaking views of the lake, marina, and town centre and includes two spacious bedrooms, both with a bathroom. Downstairs, there is a third large room currently dressed as a bedroom, right next to the laundry, with both internal and external access. A large double garage completes this unit. The attention to detail in the interior design is evident, with a well-appointed layout allowing for effortless living. The lower unit features two bedrooms and one bathroom, making it an excellent choice for families wanting proximity without sacrificing privacy. The second bedroom of the downstairs unit has been converted from an internal access garage; therefore, you could revert it back easily if having an internal access garage suited your lifestyle better. Each unit is equipped with its own sunny and private outdoor deck, where you can enjoy the fresh air and stunning surroundings. The lower unit’s backyard is particularly enchanting, providing an ideal setting for children to play or for hosting social gatherings with family and friends. Parking is a breeze with loads of additional off-street parking, accommodating multiple vehicles without hassle. This feature adds to the practicality of the property, making it an even more appealing choice for busy families. Location is key, and this property excels in that department. Situated just a short distance from the bustling town, residents will enjoy easy access to a variety of amenities, including shops, schools, and recreational facilities. The combination of convenience and a vibrant neighbourhood makes this home ideal for enjoying both local culture and the tranquility of suburban living. As you consider your next move, Pitiroi Street stands out as an opportunity not to be missed. Whether you are looking for a dual-living setup for extended family or an investment property with fantastic rental potential, this home captures it all. Seize this chance to own a unique piece of Taupo real estate today. Do not hesitate to reach out for more information or to schedule a viewing. Please note 12 and 12a Pitiroi Street will be sold separately or could be purchased together as one. Please also note that Homes' estimates will be for one unit, not both units, as each unit has a separate title.

$559,000

Request for information files


Terms of Supply

By accepting the information contained in the Property Brokers Information Files, I acknowledge I have read, understood and accepted the terms on which the information is made available:

  • It is acknowledged that any LIM report/builders reports/title search information or other property information documents that have been supplied by Property Brokers have been provided to interested potential buyers for general information purposes only, and may not have been sourced directly from providers by Property Brokers.
  • Neither Property Brokers nor their client (vendor) warrant the accuracy, completeness or currency of this documentation and nor do they accept liability for any errors or omissions in these documents.
  • All interested potential purchases should conduct their own due diligence, and obtain and rely on their own documents and legal/specialist advice as required from a person/company of their choosing.
  • Any purchase decisions are made entirely on reference of potential purchasers own judgement and they have satisfied themselves on all aspects of the property independently. Such decisions have not been made upon reference of the documents received in the Information Files supplied by Property Brokers.
  • By requesting the Information Files, you give consent for the real estate agent to communicate with you.