Lot 2,3,4,5, 66A Arnott Street, Feilding
$240,000



Four sections available
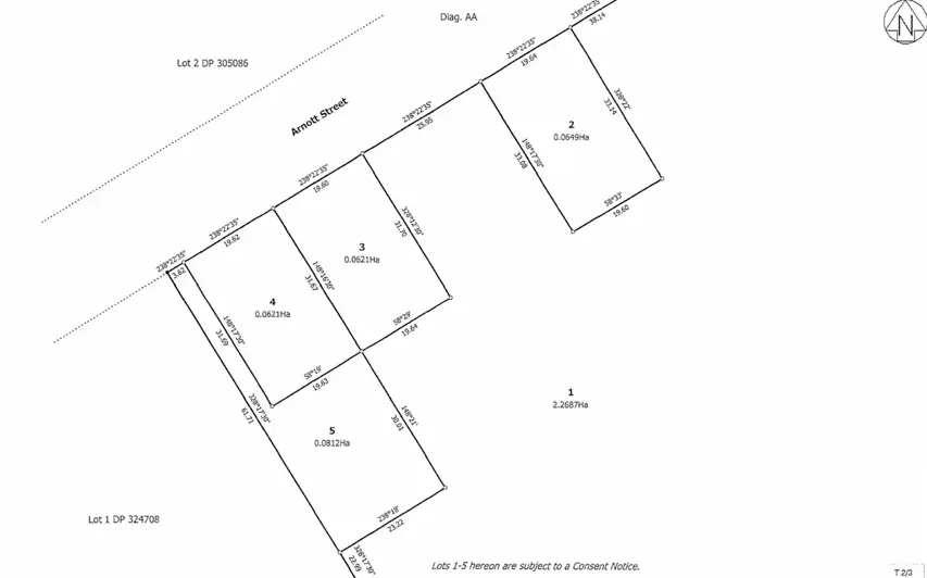
Don't miss your chance to secure one of four sections in the growing development of Arnott Street. With recent subdivisions such as Lawry Lane and Kiwitea Grove down the road, this is a fabulous opportunity which enjoys rural views across neighbouring properties. Here you will appreciate the flexibility of being able to build or perhaps relocate an existing home to the site with the ability to capitalise on the other lots in the future. The properties offer power and sewer connection to the boundary, so all you need to do is install a water tank. Less than 3 minutes from local schools and 4 minutes to Timona Park, this is the ideal spot for someone to start their property-owning journey. Lot 2 – 649 sqm (more or less) Lot 3 – 621 sqm (more or less) Lot 4 – 621 sqm (more or less) Lot 5 – 812 sqm (more or less) Our Vendors are motivated to sell, so contact us today for the detailed information pack. All enquiries are welcome, with the option of purchasing the land at zero-rating for GST registered purchasers.
Lot 2,3,4,5, 66A Arnott Street, Feilding
Web ID
FU215336
Land area
649m2
District rates
$TBCpa
Regional rates
$TBCpa
LV
$TBC
RV
$TBC
$240,000
View by appointment
Contact

