93 Kanuka Drive, Hokowhitu, Palmerston North
By Negotiation
3

2

2







+2
A spectacular new build
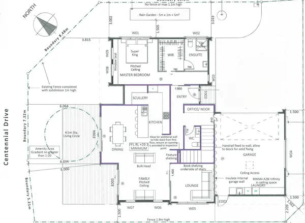
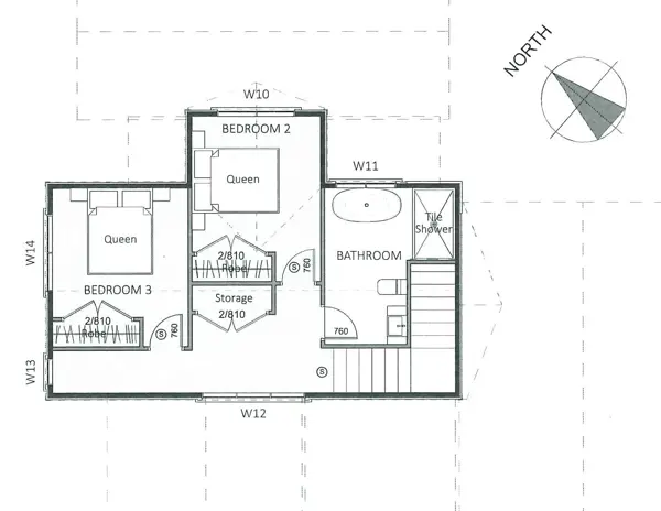
Situated in the prestigious Hokowhitu location, Centennial Park, this brand-new build is currently under construction and presents a rare opportunity to secure a spectacular home in one of the city's most sought-after addresses. Built by the reputable InHouse Construction Limited, this residence combines quality craftsmanship with thoughtful design. The layout offers versatile living with an open-plan living area, a stylish kitchen complete with scullery, and seamless flow to a sunny, private outdoor courtyard - perfect for entertaining. A separate lounge provides an additional formal space. The downstairs master suite is a true retreat, featuring a walk-in wardrobe and ensuite for modern convenience. Upstairs, you'll find two further bedrooms and a full bathroom, making it ideal for families or those who enjoy having guests. Double internal access garage and 407m2 (more or less) section adds to the easy of everyday living. Zoned for excellent schools and perfectly positioned for the Lagoon, golf course, and river walkways, it offers the best of both leisure and location. Don't miss your chance to own this beautifully designed brand-new home in an enviable setting.
Chattels
93 Kanuka Drive, Hokowhitu, Palmerston North
Web ID
BU213063
Floor area
248m2
Land area
407m2
District rates
$3,004.92pa
Regional rates
$484.77pa
LV
$440,000
3

2

2

By Negotiation
View by appointment
Contact
