Office No. 9, 215 Railway Road, Hastings
By Negotiation
58m2




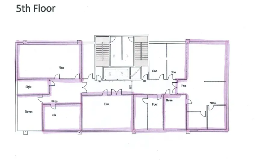
Fifth floor CBD office space for lease
Great office space located in the Tower building in the Hastings CBD. This is a well-known profile building with amazing views from the upper floors and the most affordable rentals in town, being close to shops and cafes makes break out time fun. • Good Seismic rating • Flexible Open plan office space • Lift and stair access • Secure premises, swipe card access and monitored alarm • Available immediately. Fifth Floor - Office No. 9 - 57.6sqm $5,760 net plus GST per annum. OPEX $3,689.62 plus GST per annum
Office No. 9, 215 Railway Road, Hastings
Web ID
NC85989
Floor area
58m2