186 Harrison Hill Road, Aokautere, Palmerston North
Buyers $1,190,000+
5

2

2








+25
20.11 acres with exceptional home
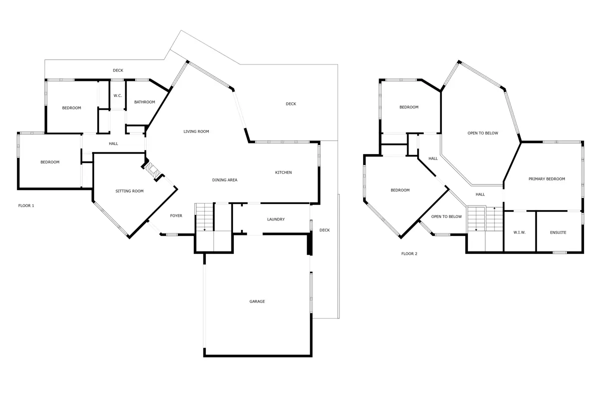
At the end of a quiet country lane, you'll discover this expansive 282m2 (more or less) family home, perfectly positioned on 20.11 acres (more or less). With five bedrooms, multiple living areas, and breathtaking views, this property combines the best of city-fringe convenience with incredible privacy of true lifestyle living. Step inside and be instantly impressed by the soaring double-height entrance and second-story gallery overlooking the dining and living spaces. This striking design floods the home with natural light, creating a warm, airy atmosphere and an incredible sense of space. The well-planned layout offers two bathrooms, (one being an ensuite), ideal for busy families or hosting guests. Everyday living is made effortless with a spacious internal laundry, direct outdoor access, and plenty of storage throughout. At the heart of the home, the kitchen is a true showpiece. Featuring generous bench space, a breakfast bar, and picture windows framing sweeping views, it's a place where cooking and entertaining become a pleasure. Flowing seamlessly into the dining and living area, this space is kept cosy with a wood burner into both lounges - perfect for gathering with family and friends. Outdoors, the possibilities are endless. Whether you dream of establishing your own gardens, creating a poolside oasis, or simply enjoying wide-open space, this property delivers. A beautiful scenic Native bush walk leads you down to a tranquil stream - perfect for family picnics is this hidden gem for amazing relaxing weekends and moments of calm. Two titles are included in this property. Just a short drive to Palmerston North, Ashhurst, Massey University, and Summerhill Shopping Centre, this rare lifestyle retreat offers the best of both worlds: rural seclusion with city convenience. Properties like this are seldom found - call me now to secure your lifestyle dream today!
Chattels
186 Harrison Hill Road, Aokautere, Palmerston North
Web ID
BL208993
Floor area
282m2
Land area
8.14 ha
District rates
$1572.10pa pa
Regional rates
$650.51pa
LV
$500,000
RV
$1,200,000
5

2

2

Buyers $1,190,000+
Upcoming open home(s)
Contact
