33 Pembroke Street, Hamilton Lake, Hamilton City

Auction 06 November 2025
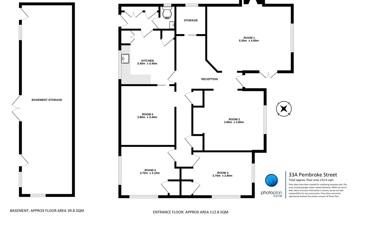
160m2
Floor Area

+13

+12

Vendors Relocating - Must Sell

Are you a professional looking to expand or establish your business in a high-visibility location? This character-filled Huntly brick home, thoughtfully converted into a functioning physiotherapy clinic, offers a rare opportunity to secure a commercial property in a high-exposure location with excellent road frontage. Inside, you'll find a series of well-configured treatment rooms – not oversized but efficiently laid out to serve clients comfortably and professionally. The space is move-in ready, which aside from its current use would also serve other allied health services, as well as offices for a range of professional end uses, such as accountant businesses, solicitors, and the like. • Prime visibility from passing traffic • On-site car parking – a major convenience for clients and staff • A welcoming reception area and clinical rooms already in use • Expansion potential into the basement area, allowing you to scale your services as your business grows Whether you’re just getting started or planning your next move, this property is a solid foundation with room to grow. Opportunities like this don’t come often. Whether you're relocating, expanding, or launching a new business, this property is ready to support your success from day one. Contact us today to arrange a private viewing and take the next step toward growing your business in a location designed to deliver. Plus GST (if any)

33 Pembroke Street, Hamilton Lake, Hamilton City

Web ID

CBC211039

Floor area

160m2

District rates

$9,284.21pa

Regional rates

$641.97pa

LV

$480,000

RV

$780,000

Auction (will not be sold prior)

Thursday, 06 November 2025, 11.00am

View by appointment

Contact


Campbell Turner

Campbell Turner

View phone

View Profile

Property enquiry

Property enquiry for
CBC211039

About the location


Satellite

You might also like


CBC119082

Iconic North Mall retail up for lease. 1st Floor approx. 2500 of floor space. Multiple usage, retail, storage, gym or office space. Great central location. Shared parking. Lots of food retail within the same site. Accommodation within walking distance. Call Stacey Reid now to view

By Negotiation
CBC119083

Take advantage of amazing ground floor retail space, approx. 270m2 Ideal tenants would be within the food industry. Options to open the space up, with side/front entrances. Plenty of advertising and window light. Lots of shared parking. Current tenants that surround North Mall bring in a lot of foot traffic, so an opportunity to easily setup and get up and running easily! Call Stacey Reid now to view

$54,000 pa + GST + OPEX
CBC206019

This spacious warehouse-style building is ready for your next venture. With an area of approx 480sqm with break-out rooms for staff and concreted small truck access, it's the ideal space for a variety of endeavours. • 480sqm high stud warehouse building • Concrete floor • Two high stud roller doors • Three-phase power • Offices, smoko room, toilet and shower facilities • Wash down room • All council consented • Small truck access • Use of air compressor and steam cleaner available • Great location a short drive to Te Rapa, Horotiu and Ngaruwahia Get in touch now for further information.

By Negotiation

Request for information files


Terms of Supply

By accepting the information contained in the Property Brokers Information Files, I acknowledge I have read, understood and accepted the terms on which the information is made available:

  • It is acknowledged that any LIM report/builders reports/title search information or other property information documents that have been supplied by Property Brokers have been provided to interested potential buyers for general information purposes only, and may not have been sourced directly from providers by Property Brokers.
  • Neither Property Brokers nor their client (vendor) warrant the accuracy, completeness or currency of this documentation and nor do they accept liability for any errors or omissions in these documents.
  • All interested potential purchases should conduct their own due diligence, and obtain and rely on their own documents and legal/specialist advice as required from a person/company of their choosing.
  • Any purchase decisions are made entirely on reference of potential purchasers own judgement and they have satisfied themselves on all aspects of the property independently. Such decisions have not been made upon reference of the documents received in the Information Files supplied by Property Brokers.
  • By requesting the Information Files, you give consent for the real estate agent to communicate with you.