33 Pembroke Street, Hamilton Lake, Hamilton City
Auction 06 November 2025
160m2







+12
Ideal Business Hub – Office, Studio, or Clinic
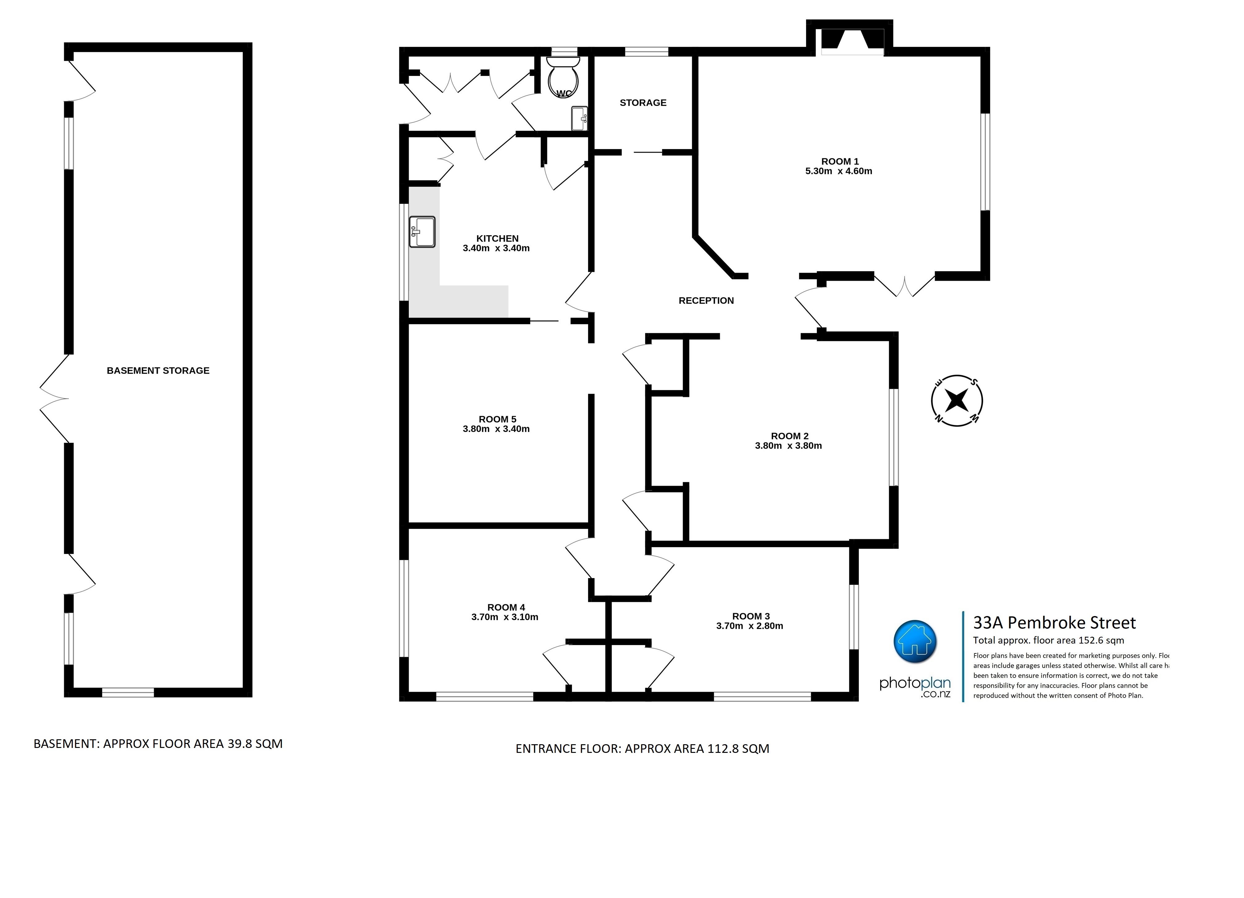
Are you a professional looking to expand or establish your business in a high-visibility location? This character-filled Huntly brick home, thoughtfully converted into a functioning physiotherapy clinic, offers a rare opportunity to secure a commercial property in a high-exposure location with excellent road frontage. Inside, you'll find a series of well-configured treatment rooms – not oversized but efficiently laid out to serve clients comfortably and professionally. The space is move-in ready, which aside from its current use would also serve other allied health services, as well as offices for a range of professional end uses, such as accountant businesses, solicitors, and the like. - Prime visibility from passing traffic - On-site car parking – a major convenience for clients and staff - A welcoming reception area and clinical rooms already in use - Expansion potential into the basement area, allowing you to scale your services as your business grows Whether you’re just getting started or planning your next move, this property is a solid foundation with room to grow. Opportunities like this don’t come often. Whether you're relocating, expanding, or launching a new business, this property is ready to support your success from day one. Contact us today to arrange a private viewing and take the next step toward growing your business in a location designed to deliver.
33 Pembroke Street, Hamilton Lake, Hamilton City
Web ID
CBC211039
Floor area
160m2
District rates
$9,284.21pa
Regional rates
$641.97pa
LV
$480,000
RV
$780,000
Auction (will not be sold prior)
Thursday, 06 November 2025, 11.00am
View by appointment
Contact
