Industrial Land 9439M2 (Lot 11) Rangiuru Business Park Development, Rangiuru, Western Bay Of Plenty
$5,899,375 + GST (if any)
9,439m2







+1
Industrial Land 9439m2 (Lot 11) Rangiuru
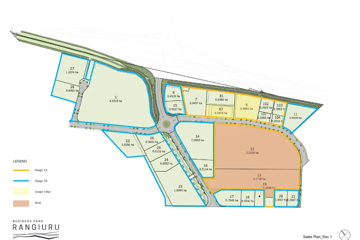
The Rangiuru Business Park is a major industrial development located near Te Puke in the Bay of Plenty, New Zealand. Spanning 148 hectares across four stages, it is set to become the region's largest consented greenfield industrial zone. •Total area: 0.9439ha •Stage 1, covering approximately 14 hectares, is currently selling, with titles expected by late 2025 The development includes significant infrastructure, such as a $60 million motorway interchange connecting the park to State Highway 2, co-funded by Quayside Holdings and the Provincial Growth Fund. The park incorporates sustainable design elements, including a 48-hectare stormwater pond and wetland, and collaborates with local iwi to ensure cultural considerations are met. A full Information Memorandum is available on request. Contact the agents for more information.
Industrial Land 9439M2 (Lot 11) Rangiuru Business Park Development, Rangiuru, Western Bay Of Plenty
Web ID
TGC214269
Land area
9,439m2
$5,899,375 + GST (if any)
View by appointment
Contact

