Industrial Land 5003m2 (Lot 26) Rangiuru Business Park Development, Rangiuru, Western Bay Of Plenty

$2,876,725 + GST (if any)

5,003m2

Land Area

+2

+1

Industrial Land 5003m2 (Lot 26) Rangiuru

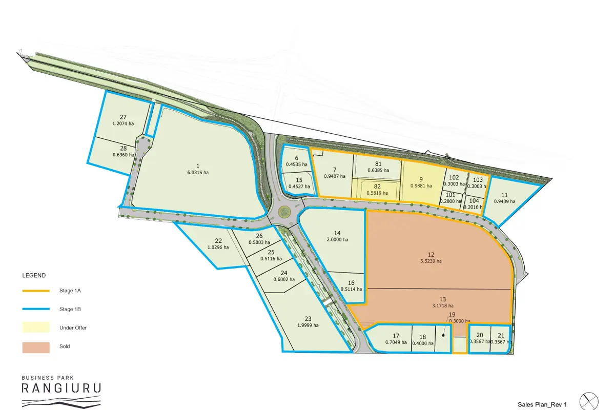
The Rangiuru Business Park is a major industrial development located near Te Puke in the Bay of Plenty, New Zealand. Spanning 148 hectares across four stages, it is set to become the region's largest consented greenfield industrial zone. •Total area: 0.5003ha •Stage 1, covering approximately 14 hectares, is currently selling, with titles expected by late 2025 The development includes significant infrastructure, such as a $60 million motorway interchange connecting the park to State Highway 2, co-funded by Quayside Holdings and the Provincial Growth Fund. The park incorporates sustainable design elements, including a 48-hectare stormwater pond and wetland, and collaborates with local iwi to ensure cultural considerations are met. A full Information Memorandum is available on request. Contact the agents for more information.

Industrial Land 5003m2 (Lot 26) Rangiuru Business Park Development, Rangiuru, Western Bay Of Plenty

Web ID

TGC214279

Land area

5,003m2

$2,876,725 + GST (if any)
View by appointment

Contact


Philip Hunt

Philip Hunt

View phone

View Profile

Property enquiry

Property enquiry for
TGC214279
Brad Walker

Brad Walker

View phone

View Profile

About the location


Satellite

You might also like


TGC214184

The Rangiuru Business Park is a major industrial development located near Te Puke in the Bay of Plenty, New Zealand. Spanning 148 hectares across four stages, it is set to become the region's largest consented greenfield industrial zone. •Total area: 6.0315ha •Stage 1, covering approximately 14 hectares, is currently selling, with titles expected by late 2025 The development includes significant infrastructure, such as a $60 million motorway interchange connecting the park to State Highway 2, co-funded by Quayside Holdings and the Provincial Growth Fund. The park incorporates sustainable design elements, including a 48-hectare stormwater pond and wetland, and collaborates with local iwi to ensure cultural considerations are met. A full Information Memorandum is available on request. Contact the agents for more information.

$34,681,125 + GST (if any)
TGC214263

The Rangiuru Business Park is a major industrial development located near Te Puke in the Bay of Plenty, New Zealand. Spanning 148 hectares across four stages, it is set to become the region's largest consented greenfield industrial zone. •Total area: 0.6385ha •Stage 1, covering approximately 14 hectares, is currently selling, with titles expected by late 2025 The development includes significant infrastructure, such as a $60 million motorway interchange connecting the park to State Highway 2, co-funded by Quayside Holdings and the Provincial Growth Fund. The park incorporates sustainable design elements, including a 48-hectare stormwater pond and wetland, and collaborates with local iwi to ensure cultural considerations are met. A full Information Memorandum is available on request. Contact the agents for more information.

$4,150,250 + GST (if any)
TGC214264

The Rangiuru Business Park is a major industrial development located near Te Puke in the Bay of Plenty, New Zealand. Spanning 148 hectares across four stages, it is set to become the region's largest consented greenfield industrial zone. •Total area: 0.9881ha •Stage 1, covering approximately 14 hectares, is currently selling, with titles expected by late 2025 The development includes significant infrastructure, such as a $60 million motorway interchange connecting the park to State Highway 2, co-funded by Quayside Holdings and the Provincial Growth Fund. The park incorporates sustainable design elements, including a 48-hectare stormwater pond and wetland, and collaborates with local iwi to ensure cultural considerations are met. A full Information Memorandum is available on request. Contact the agents for more information.

$6,422,650 + GST (if any)

Request for information files


Terms of Supply

By accepting the information contained in the Property Brokers Information Files, I acknowledge I have read, understood and accepted the terms on which the information is made available:

  • It is acknowledged that any LIM report/builders reports/title search information or other property information documents that have been supplied by Property Brokers have been provided to interested potential buyers for general information purposes only, and may not have been sourced directly from providers by Property Brokers.
  • Neither Property Brokers nor their client (vendor) warrant the accuracy, completeness or currency of this documentation and nor do they accept liability for any errors or omissions in these documents.
  • All interested potential purchases should conduct their own due diligence, and obtain and rely on their own documents and legal/specialist advice as required from a person/company of their choosing.
  • Any purchase decisions are made entirely on reference of potential purchasers own judgement and they have satisfied themselves on all aspects of the property independently. Such decisions have not been made upon reference of the documents received in the Information Files supplied by Property Brokers.
  • By requesting the Information Files, you give consent for the real estate agent to communicate with you.