8 Old Saleyard Road, Cromwell, Central Otago
By Negotiation
2,746m2

838m2







+10
New Build Industrial for Lease
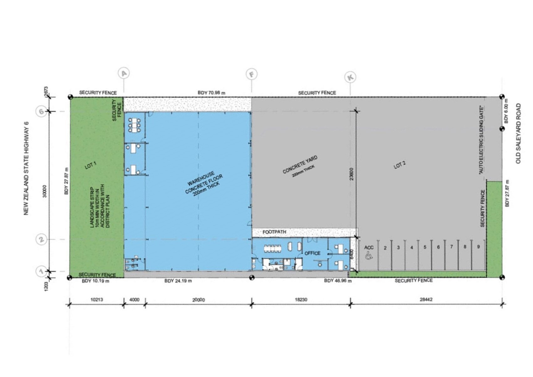
Recently completed, this 838m2 industrial building is situated on Old Saleyard Road with direct profile to the main highway and boasts the following features: - warehouse 720m2, office 118m2 - 200mm thick concrete yard - three 5m x 5m roller doors - 3 phase power - 2,746m2 section - great profile site with approximately 33m2 street frontage, providing easy access Quality building in a quality location is available for Lease. Make sure you enquire today.
8 Old Saleyard Road, Cromwell, Central Otago
Web ID
CRC190357
Floor area
838m2
Land area
2,746m2
District rates
$8,693.03pa
Regional rates
$622.17pa
RV
$2,480,000
By Negotiation
View by appointment
Contact
